立式輥磨機 輥磨機 鋼渣礦渣水渣微粉磨 立式輥磨機 立磨
電機功率 KW) 結構形式 立式 球磨機長度 長磨機 磨礦方式 濕式 規格 ZKRM08.2-ZKRM22.3 ZKRM08.2-ZKR [產品介紹]: 近多年來,立式輥...
【鉸磨機】鉸磨機價格_鉸磨機批發_鉸磨機廠家_Hc
珩磨機立式珩磨機,鉸珩珩磨機,數控珩磨機RM系列&MDASH 北京大足同進機械有限...磨機 振動磨機 磨機襯板 氣動磨機 磨機配件 慢磨機 柱磨機 點磨機 ...
【大足同進燒結型刀具 珩磨頭 珩磨機 大足同進珩磨機珩磨頭廠家】...
立式珩磨機自動化——北京大足同進機械有限公司 ¥1.00 精密珩磨機|立式珩磨機|珩磨頭|數控珩磨機|RM系列——大足同進 ¥1.00 精密珩磨機|立式珩磨...
【美國愛適易SS300 廚房商用食物垃圾處理器 餐廳 研磨機】價格_...
專業生產定制立式研磨機,研磨機批發,研磨機廠家,立式珩磨機,全新珩磨機 ¥50000...【達利爾重工】 RM超細雷蒙磨 研磨機 石墨磨粉機 磨粉機 焦碳磨粉機 ¥1...
立磨 立式輥磨機 - 立磨(生產廠家,價格,技術參數,工作原理,結構...
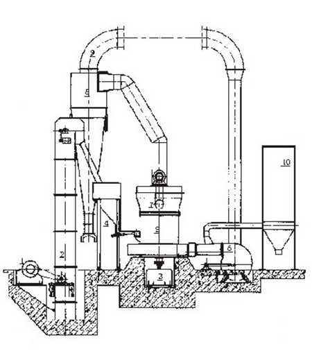
立磨 立式輥磨機規格型號:ZKRM08.2-ZKRM22.3原料水分:礦渣≤15%,水泥≤3%,生料≤7%適用物料:立式輥...
【平移磁力研磨機、平行式磁力研磨機】價格_廠家_圖片 -Hc
專業生產定制立式研磨機,研磨機批發,研磨機廠家,立式珩磨機,全新珩磨機 ¥50000...【達利爾重工】 RM超細雷蒙磨 研磨機 石墨磨粉機 磨粉機 焦碳磨粉機 ¥1...
我廠RM25/12立式磨運轉8700h體會_
袁傳明-《水泥》-1994[####]我廠RM25/12立式磨運轉8700h體會 立式磨運轉故障磨機摘要:袁傳明山東省新汶水泥廠《水泥》...[/####] 立式輥磨型號
閱讀文檔頁-上傳時間:年月日我國在年,由天津水泥工業設計研究院和昊江水泥廠合作開始采用PZM/立式輥磨粉磨生料.今已完成TRM輥磨機系列設計,其型號:TRMTRM,TRM...
立式水磨機【多圖】_價格_圖片- 天貓精選
天貓精選立式水磨機專題,我們從價格、評價、銷量出發,為您精選了和立式水磨機相關的575個商品
鉬破碎機械工作原理-砂石礦山機械網
立式烘干機|冷卻機|型煤干燥機|詳細說明煤泥烘干機...RM破碎 復破碎機 大塊煤炭破碎成四九塊 液壓...粉磨機的構造 - 礦山選礦設備。粉磨機的構造粉磨機...
【內孔珩磨機】內孔珩磨機價格_內孔珩磨機報價 - 中國供應商
大足同進鉸珩立式珩磨機RM系列 ¥1.00 北京 順義區 供應臥式珩磨機 ¥1.00 上海 嘉定區 下一頁 相關搜索 珩磨機 珩磨頭 珩磨 立式珩磨機 珩磨...
立式磨粉機配件_rm1500me立式磨煤機 專業立式磨 立式磨..._
世邦工業 rm1500me立式磨煤機 專業立式磨 立式磨粉機配件 1臺 起批 ¥99000.00 賣家包郵 賣家包郵 0臺 發貨 上海 評價 0人已評價 0 ...
【RM立式磨,上海產的打粉機磨粉機】-網
2016年11月10日-國產立磨廠家眾多,南方知名的有桂林,中原地區的河南RM立式磨廠家,東部的有上海RM立式磨廠家,北方的有山東的磨粉機廠家。桂林生產的立磨機,性...
立磨、輥磨機
立磨、輥磨機規格型號:ZKRM08.2-ZKRM22.3原料水分:礦渣≤15%,水泥≤3%,生料≤7%適用物料:立式輥磨...
【鏡面研磨機】鏡面研磨機價格_鏡面研磨機批發_鏡面研磨機廠家_Hc...
供應萬科雷蒙磨 小型磨粉機 高壓懸輥磨粉機 立式研磨...山東達利爾 RM超細雷蒙磨 研磨機 雷蒙磨 超細精磨 ...出售8成新陶瓷鏡面雙面研磨機 雙面平磨機價格 ¥...
9B研磨機_
供應萬科雷蒙磨 小型磨粉機 高壓懸輥磨粉機 立式研磨...山東達利爾 RM超細雷蒙磨 研磨機 雷蒙磨 超細精磨 ...深圳明禾益9B型雙面精密磨機拋光機 平面拋光機批發 ...
宏科RM-2008電視機遙控器的說明書誰有啊?-家居裝修問答-大眾...
2018年7月3日-以下僅供參考: 眾合牌 CHUNGHOP RM-490C 型電視機遙控器搜索正確代碼的方法: 1.打開您要遙控的電視機的電源開關 2.將遙控器正對著電視機,先按住“...
【立式珩磨機】-立式珩磨機價格|批發-立式珩磨機廠家-網
立式珩磨機 ¥ 1.00詢盤珩磨機|立式珩磨機|鉸珩珩磨機|數控珩磨機|RM系列—...立式磨機 珩磨機 立式飲水機 立式包裝機 立式減速機立式珩磨機相關公司凈...
立式磨機_2018立式磨機報價_立式磨機_技術
富蘭重工是立式磨機 的專業生產廠家,引進國外先進技術,立式磨機 設備精良,服務完善,提供立式磨機 總包服務,出口全球13..

立式磨粉機_立式磨粉機 rm1500me立式磨粉機 立式磨機 -
手機版:世邦工業 立式磨粉機價格 rm1500me立式磨粉機 立式磨機 內容聲明:中國站為第三方交易平臺及...
立式磨粉機_2000目磨粉機 立式磨粉機價格 rm1500me立式磨煤機 - ...
2000目磨粉機 立式磨粉機價格 rm1500me立式磨煤機...此款立磨機裝有防止輥套和磨盤襯板直接接觸的限位裝置...
